【住まいの広場】相模原市・八王子市・町田市の戸建てやマンションなど不動産 > (戸建(売買))地域から探す > 相模原市中央区 > 物件詳細
ファミリー向けのポイント、共和小学校が徒歩4分のところにあります。広々としたゆとりある室内が魅力的な、3LDKの物件です。相模原市中央区で素敵な住まいを探すなら、住まいの広場にお尋ねください。0120-168-015から、売買戸建てに関するご質問を承っております。
現地見学会
【前面道路含む現地写真】住宅用の土地では前面道路に2m以上接していなければならないと法律で定められています。しかし、お持ちの車のサイズやライフスタイルなどにより、2mでは利便が悪い場合もございますので、事前に確認しましょう。
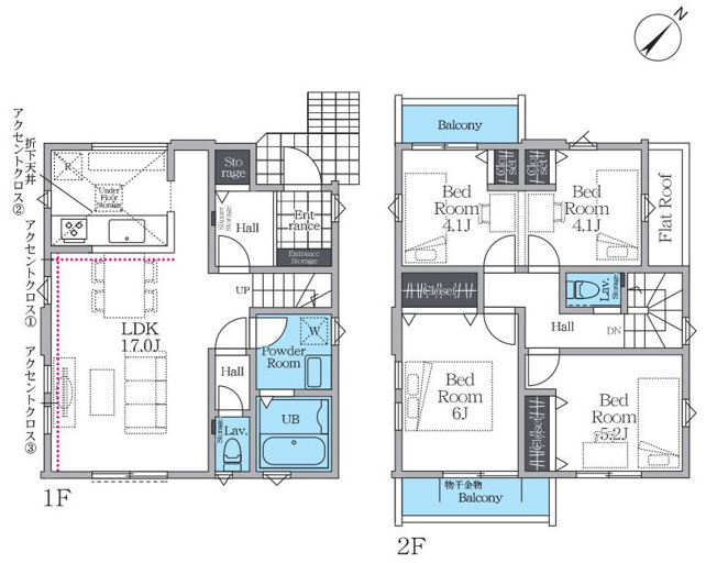
【間取り】3LDKは、リビングダイニングキッチンと3つの居室がある間取り。ファミリー層に非常に人気の高い間取りで、広々としたリビングで家族団らんを楽しみ、個室でプライベートな時間も確保できるのが大きな魅力です。
※写真や図と実際の現状とが異なる場合は現状を優先させていただきます。











(※元利均等方式 金利5.00%まで ※返済年数5~50年まで入力できます)
(※ボーナスは年2回で計算しています。1000万円まで入力できます)
(※物件購入時、その他諸費用が発生する場合がございます)
| 所在地 | 神奈川県相模原市中央区由野台1丁目 | ||
|---|---|---|---|
| 交通 | |||
| 間取り/詳細 |
3LDK/ LDK 17.0帖 1室/洋室 8.2帖 1室/洋室 6.0帖 1室/洋室 5.2帖 1室 |
建物面積(坪数) | 88.59㎡(26.79坪) |
| 価格 | 4,799万円 | ||
| 駐車場/月額料金 | 有/0円 | ||
| 土地の敷金/保証金 | -/- | 借地料/借地期間 | -/- |
| 土地権利 | 所有権 | 土地面積(坪数) | 88.93㎡(26.90坪) |
| 傾斜地部分面積 | - | 路地状敷地 | - |
| 私道負担面積/セットバック | -/無 | 高圧線下面積 | - |
| 地目/地勢 | 宅地/- | 接道状況 | 角地(北西 公道 6.0m)(南西 公道 5.0m) |
| 建ぺい率/容積率 | 50%/100% | 用途地域 | 第一種低層住居専用 |
| 都市計画 | 市街化区域 | 種別/構造 | 新築一戸建/木造 |
| 階建 | 2階建 | 築年月(築年数) | 2026年 3月 (新築) |
| 総区画数/販売区画数 | 2区画/1区画 | 向き | 南東 |
| 現況 | 完成済み | その他の法令上の制限 | - |
| 取引態様/引渡時期 | 仲介/2026年3月下旬 | 建築確認番号 | 第25UDI1W建07860号 |
| 物件番号 | 98939478 | 取引条件の有効期限 | 2026年04月15日 |
| 設備条件 |
|
||
| 備考 | ファミリー向けのポイント、共和小学校が徒歩4分のところにあります。皆で仲良く生活できる3LDKの物件情報はこちらです。相模原市中央区でマイホームをお探しなら、まずは住まいの広場が取り扱っている戸建てをご覧ください。0120-168-015から見学のご予約を受け付けております。 | ||
| 取扱会社 |
|
||
| QRコード |
このQRコードを読み取ることで、スマホでも物件情報を確認できます。 |
||
※地図上に表示される物件の位置は付近住所に所在することを表すものであり、実際の物件所在地とは異なる場合がございます。
相模原市中央区由野台1丁目の新築一戸建に関するこだわり条件から探す
相模原市中央区の町名から探す